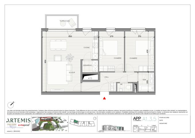
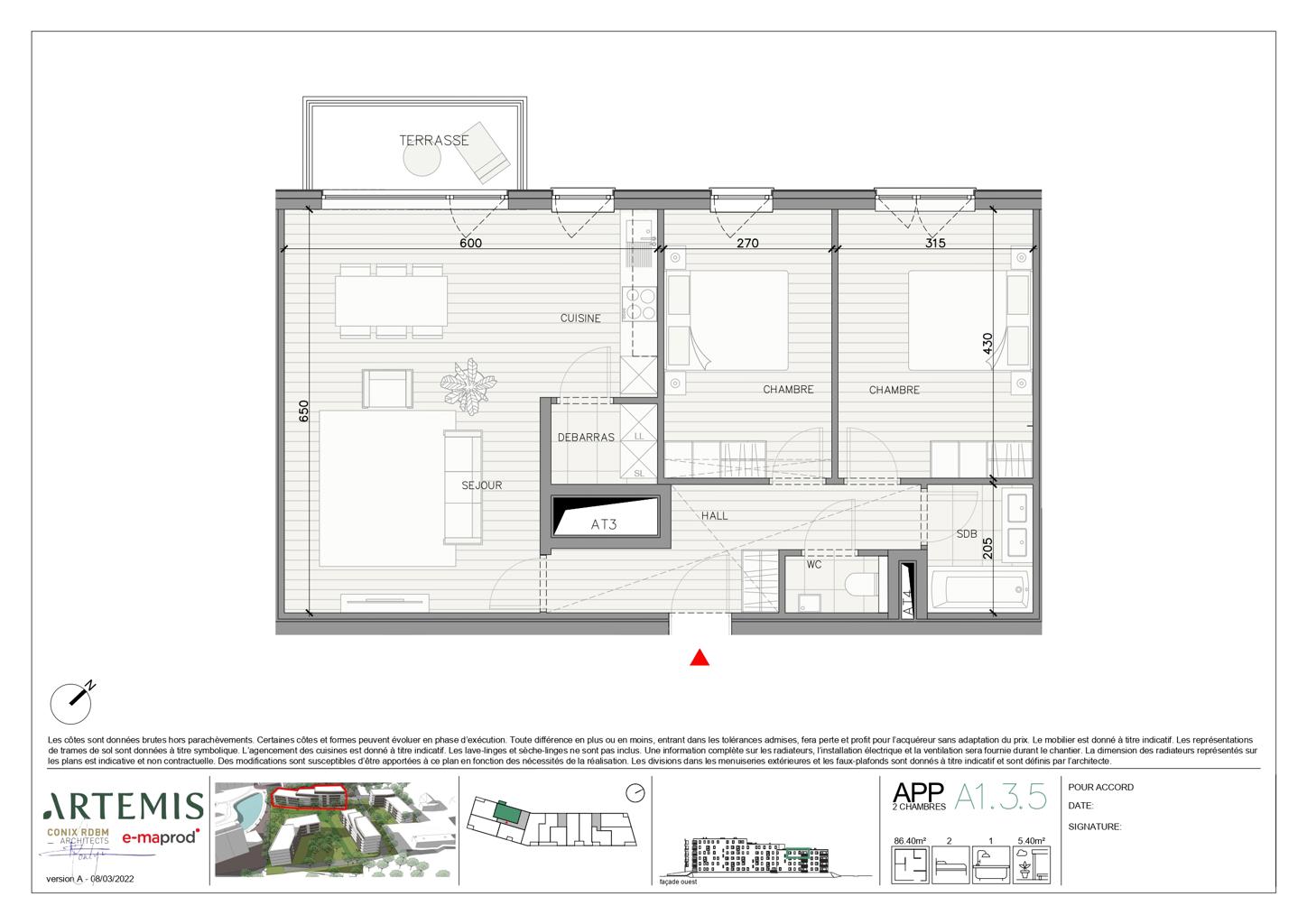
Appartement de 86m² - 2 Ch. + terrasse S-O au 3ème étage - PEB B Situé au sud de Namur, de l’autre côté de la Meuse, Jambes est le parfait point de chute des nouveaux habitants de la capitale wallonne. Le quartier est facilement accessible, via des nationales reliant en quelques minutes l’E411 et l’E42, et parfaitement desservi par les transports en commun. Artemis s’élève au cœur d’un quartier paisible composé d’immeubles résidentiels et bordé de nombreux espaces verts. Le bâtiment de 59 appartements, à l’architecture sobre et épurée, s’érige au bord de l’étang du Petit-Ry. Point de départ de promenades, les berges de l’étang sont un lieu de rencontre et d’échange idéal pour les habitants du quartier. Il sera aussi un lieu de vie adapté aux familles souhaitant rester proche de Namur, de sa citadelle historique, ses centres de loisirs et ses bonnes adresses. Le rez-de-chaussée et les trois premiers étages se composent chacun de douze appartements aux profils variés: d’une à trois chambres et tous disposant d’au moins une terrasse ou balcon. Une typologie mixte qui offre une belle diversité du côté des occupants: du 1 chambre de 68m2 au vaste 3 chambres de 140m2, en passant par de confortables 2 chambres de 90m2. En retrait le quatrième et le cinquième étage proposent de beaux volumes et de grandes terrasses. Plus d'informations au 010/23.87.00
| Réf. | Bâtiment | Niveau Niv. | Surface | Terrasse | Jardin | Chambres Ch. | Prix | Plan |
|---|