Appartement - à vendre - 5100 Namur - 265.000 €

2 1 94.9 m²
Appartement
Namur
265.000 €

Appartement 2ch de 95m² + terrasse au rez-de-chaussée - PEB B Situé au sud de Namur, de l’autre côté de la Meuse, Jambes est le parfait point de chute des nouveaux habitants de la capitale wallonne. Le quartier est facilement accessible, via des nationales reliant en quelques minutes l’E411 et l’E42, et parfaitement desservi par les transports en commun. Artemis s’élève au cœur d’un quartier paisible composé d’immeubles résidentiels et bordé de nombreux espaces verts. Le bâtiment de 59 appartements, à l’architecture sobre et épurée, s’érige au bord de l’étang du Petit-Ry. Point de départ de promenades, les berges de l’étang sont un lieu de rencontre et d’échange idéal pour les habitants du quartier. Il sera aussi un lieu de vie adapté aux familles souhaitant rester proche de Namur, de sa citadelle historique, ses centres de loisirs et ses bonnes adresses. Le rez-de-chaussée et les trois premiers étages se composent chacun de douze appartements aux profils variés: d’une à trois chambres et tous disposant d’au moins une terrasse ou balcon. Une typologie mixte qui offre une belle diversité du côté des occupants: du 1 chambre de 68m2 au vaste 3 chambres de 140m2, en passant par de confortables 2 chambres de 90m2. En retrait le quatrième et le cinquième étage proposent de beaux volumes et de grandes terrasses. Plus d'informations au 010/23.87.00

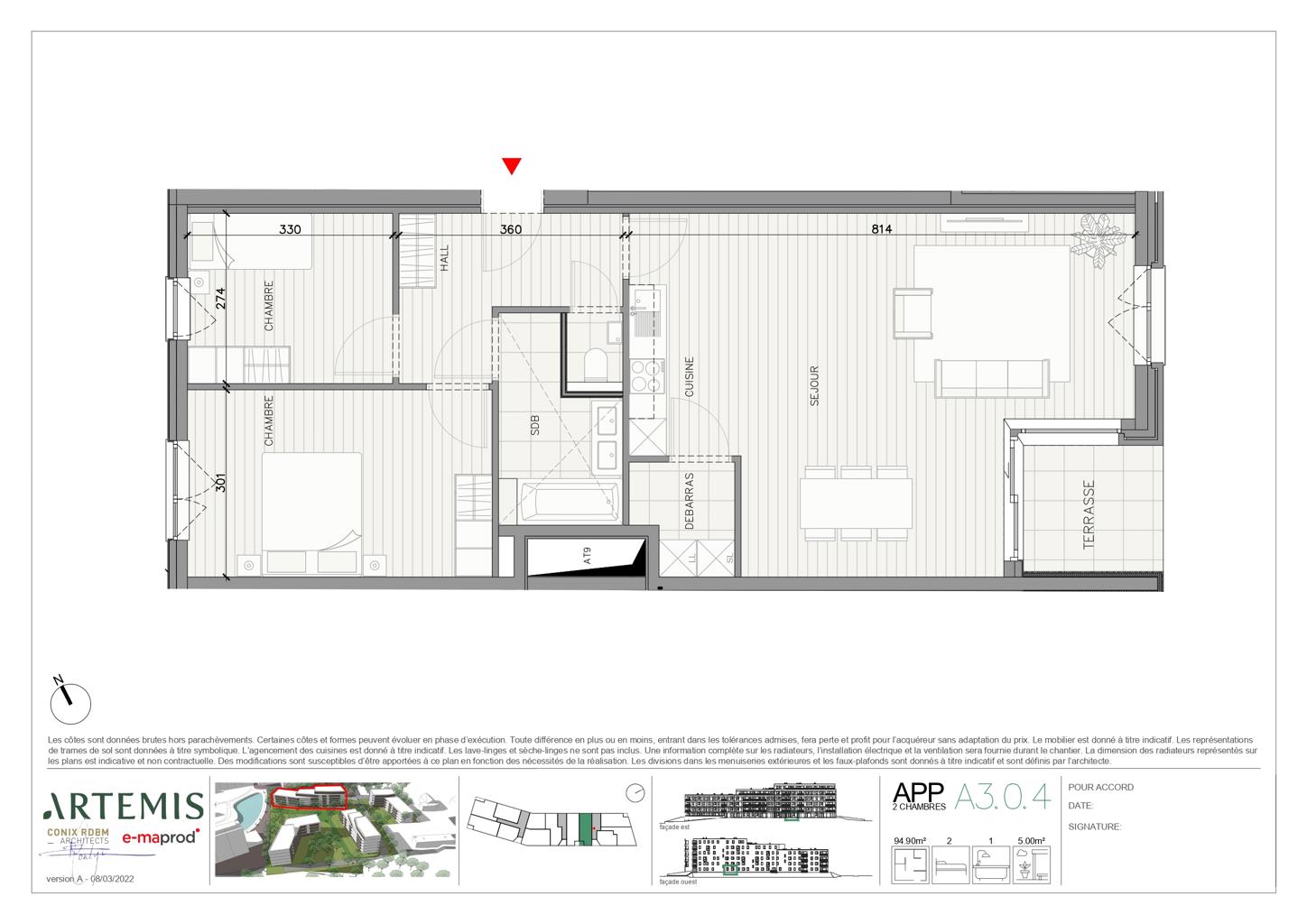
Bel appartement idéal comme investissement en cours de construction développant une superficie de 94,90m² + terrasse 5m² orientée Sud-Est.
Appartement situé au rez-de-chaussée. 

Techniques :

Châssis en aluminium thermique double vitrage - Chaudière à condensation au gaz - carrelages imitation parquet - cuisine équipée à choisir - ascenseur
Personnalisation possible. 


Composition

REZ 

Hall d'entrée, carrelages
Wc séparé avec lave main, carrelages
Grand et lumineux living (32m²) avec accès terrasse orientée sud-est, carrelages
Cuisine américaine super-équipée à choisir selon un budget
Buanderie, carrelages

Belle Ch. 1 (15m²), carrelages imitation plancher
Ch. 2 (9m²), carrelages imitation plancher
Salle de bains, bain/douche, meuble 2 lavabos,
 sèche serviette, carrelages

REMARQUES
Belles finitions et pack investisseur possible
Obligation d'acquérir en sus du prix un emplacement de parking intérieur à 20.000€ hors frais et une cave à 2.500€
PEB: B

Bâtiment

Année de construction 2022

Equipement de base

Accès handicapés Oui
Chauffage (ind/coll) individuel
Ascenseur Oui
Chauffage gaz (chau. centr.)
Type d'ascenseur personnes
Double vitrage isol. thermique et acoustique

Divers

Buanderie Oui
Cave Oui

En chiffres

Nbre de toilette(s) 1
Chambre 1 15m²
Chambre 2 9m²
Nbre de terrasse(s) 1
Salle de séjour 32m²
Orientation de la terrasse 1 sud-est

Equipement extérieur

Piscine Non

Charges & Rendement

Sous régime TVA Oui

Raccordements

Égouts Oui
Électricité Oui
Gaz Oui
Eau Oui

Équipements techniques

Châssis aluminium thermique

Spécificités terrain

Type d'environnement calme
Type d'environnement 2 résidentiel

Caractéristiques Principales

Surface de terrasse 1 5m²

Nom, catégorie & situation

Nombre d'étages 5
X de coordonnées xy 50.44479399999999
Y de coordonnées xy 4.8748932

Titre de l'annonce

A304 : Bel appart. 2 Ch. + terrasse au rez

Coûts & Frais

Valeur du bien 265000

Certificats / Attestations

Certificat d'électricité oui, conforme

Général

Référence 4651588
Catégorie Appartement
Meublé Non
Nombre de chambres 2
Nombre de salle de bain 1
Jardin Non
Garage Non
Terrasse Oui
Parking Oui
Surface habitable 94.9 m²
Disponibilité à la livraison

Situation

Partager :
Contactez-nous

* indique un champ obligatoire

This field is for validation purposes and should be left unchanged.

Vos coordonnées

This field is hidden when viewing the form
This field is hidden when viewing the form
This field is hidden when viewing the form
This field is hidden when viewing the form
This field is hidden when viewing the form
Sans titre
Sans titre
Sans titre*
Référence: 4651588
Designed and Developed by Webulous / Managed by Clevermint / Powered by Whise / Revoir le popup