Immeuble de bureaux - à louer - 1300 Wavre - 975 €

125 m²
Immeuble de bureaux
Wavre
975 €


Unique au Zoning Nord !!

OFFRE ALL-IN pour un espace très qualitatif et une durée de bail flexible

Bureaux superbement rénovés et totalement remis à neuf
Bâtiment de haut standing


SITUATION/MOBILITÉ

- à 5 min de centre de Wavre
- à 5 min de la E411
- Proche de nombreuses facilité (restaurants, sandwicheries, magasins, Fitness...)
- Transport en commun à Proximités (Arrêt de bus à 100m, gare de Wavre)

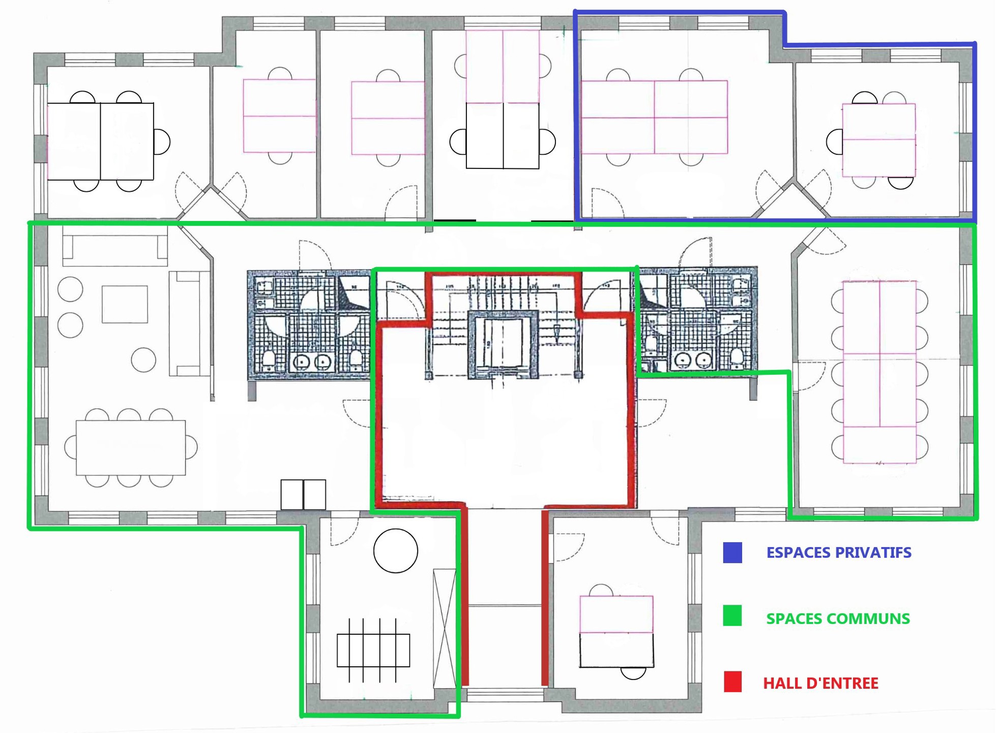
COMPOSITION

125 m² de bureaux meublés, clé sur porte, au sein d'un plateau totalisant 400 m² au rez

Espace composé de:
-un grand bureau/open-space de 32,5 m²
-un bureau de 20,5 m²
-Magnifique salle de réunion commune hyper équipée de 40 m²

Vous profitez des vastes et magnifiques espaces commun :
-Cuisine équipée
-Coin lunch
-Espace détente/informel
-Sanitaires H/F
-Balcon

Espace très agréable et doté du confort moderne:
- Eclairage LED
- Thermostats privatifs
- Air-co
- Nouvelle moquette au sol
- Stores screen à toutes les fenêtres
- Rack informatique avec réseau câblé
- Contrôle d'accès par badges

-Finitions et équipements de qualité
-Magnifique vue sur le jardin et la verdure


PARKINGS:
Parking à louer en plus: 40€/place/mois

CONDITIONS (mensuelles)

Loyer: 975€
+ Forfait fixe de 750€/mois incluant un all-in : consommation, assurance, précompte immobilier, nettoyage, machine à café, consommables dans le frigo, ...

Disponible directement !

Pour plus d'info, contactez notre équipe entreprise au 010/23.87.07

Bâtiment

Année de construction 1990
Parking intérieur Non
Parking extérieur Oui

Nom, catégorie & situation

Nombre d'étages 2
X de coordonnées xy 50.7295387
Y de coordonnées xy 4.591461900000001

Equipement de base

Accès handicapés Oui
Toilettes H/F Oui
Chauffage chaudière

Divers

Bureau Oui
Cave Oui

En chiffres

Nombre de bureaux général 2
Bureau 125m²

Admin & Financier

Sous régime TVA Non
Type de bail 1 an

Sécurité

Contrôle d'accès Oui
Sécurité Oui
Type de contrôle d'accès badge
Alarme Oui

Raccordements

Égouts Oui
Électricité Oui
Eau Oui

Spécificités terrain

Type d'environnement calme
Risque d'inondation pas situé en zone inondable

Équipements techniques

Type d'électricité 220 V

Certificats / Attestations

Certificat d'électricité oui, conforme

Titre de l'annonce

Zoning Nord | Bureaux magnifiquement rénovés

Général

Référence 6693189
Catégorie Immeuble de bureaux
Meublé Oui
Nombre de chambres
Nombre de salle de bain
Jardin Non
Garage Non
Terrasse Non
Parking Oui
Surface habitable 125 m²
Disponibilité immédiatement

Situation

Partager :
Contactez-nous

* indique un champ obligatoire

This field is for validation purposes and should be left unchanged.

Vos coordonnées

This field is hidden when viewing the form
This field is hidden when viewing the form
This field is hidden when viewing the form
This field is hidden when viewing the form
This field is hidden when viewing the form
Sans titre
Sans titre
Sans titre*
Référence: 6693189
Designed and Developed by Webulous / Managed by Clevermint / Powered by Whise / Revoir le popup