Bureaux - à louer - 1380 Lasne - 600 €

46 m²
Bureaux
Lasne
600 €

UNIQUE à LASNE | A proximité de l'Abbaye d'Aywiers, Hendrix Entreprise vous propose ce magnifique espace de bureaux récent | Situé au 1er étage (pas d'ascenseur), constitué d'un bureaux de '46 m² - open-space (6 personnes) | Environnement de travail sécurisé et très vert | Espace très agréable et lumineux, joliment décoré | Espace équipé de RJ45, luminaires LED, alarme, bâtiment avec accès sécurisé | Loyer: 600€ / mois + Charges privatives & précompte | Contactez notre équipe Corporate pour plus d'infos au 010/23.87.07 !

SUPERBE OPPORTUNITE dans LASNE

Idéal pour: Co-working, bureau d'avocat, Société de consulting, agence de communication, fiduciaire,...

SITUATION

Centre de Lasne
A côté de l'Abbaye d'Aywiers
Commerces et facilités urbaines très accessibles

COMPOSITION

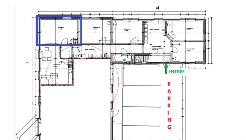
Magnifique espace de bureaux de 46 m² situé au +1

-->Disposition très agréable et espaces lumineux
-->Totalement modulable
-->Prêt à l'emploi

-Chauffage gaz, alarme et contrôle d'accès sécurisé

PARKINGS

- Places de parking disponibles

CONDITIONS

Loyer : 600 €/mois
Charges privative (internet, eau, électricité)
Charges communes (entretiens des abords)
Disponible immédiatement

Contactez notre équipe Corporate au 010/23.87.07

Nom, catégorie & situation

Nombre d'étages 2
X de coordonnées xy 50.6689062
Y de coordonnées xy 4.4676564

Bâtiment

Parking intérieur Non
Parking extérieur Oui
Année de rénovation 2025
Type de toit toit en pointe
Nombre de parking 10

Equipement de base

Accès handicapés Non
Chauffage (ind/coll) Chauffage mural
Ascenseur Non
Toilettes H/F Oui
Chauffage Chauffage mural

En chiffres

Surface bâtie 46m²
Surface brute 46m²
Nombre de bureaux général 1
Surface nette 46m²
Bureau 46m²

Divers

Bureau Oui

Sécurité

Contrôle d'accès Oui
Type de contrôle d'accès barrière
Alarme Oui

Raccordements

Égouts Oui
Électricité Oui
Gaz Oui
Câbles téléphoniques Oui
Eau Oui

Spécificités terrain

Type d'environnement calme
Type d'environnement 2 boisé

À proximité

Magasins Oui
Ecoles Oui
Transports en commun Oui
Centre sportif Oui
Autoroute Oui
Gare Oui

Certificats / Attestations

Certificat d'électricité oui, conforme

Titre de l'annonce

Centre de Lasne : Bureaux rénovés avec parking en suffisance

Equipement extérieur

Cour Oui

Général

Référence 7275544
Catégorie Bureaux
Meublé Non
Nombre de chambres
Nombre de salle de bain
Jardin Non
Garage Non
Terrasse Non
Parking Oui
Surface habitable 46 m²
Disponibilité immédiatement

Situation

Partager :
Contactez-nous

* indique un champ obligatoire

This field is for validation purposes and should be left unchanged.

Vos coordonnées

This field is hidden when viewing the form
This field is hidden when viewing the form
This field is hidden when viewing the form
This field is hidden when viewing the form
This field is hidden when viewing the form
Sans titre
Sans titre
Sans titre*
Référence: 7275544
Designed and Developed by Webulous / Managed by Clevermint / Powered by Whise / Revoir le popup