Loft - à vendre - 1300 Wavre - 287.500 €

3 1 186 m²
Loft
Wavre
287.500 €

A proximité du centre de Wavre, au sein du projet résidentiel neuf "Val Vena"| Au rez-de-chaussée | Etat CASCO: A aménager selon besoin (sol, plafonds, techniques, sanitaires, finitions,...). Superbe opportunité d'aménager l'espace à votre goût| Très lumineux apport de lumière transversal grâce à un magnifique patio | 1 parkings extérieurs privatif et 1 cave inclus dans le prix | Parkings supplémentaires disponibles | informations supplémentaires ou visites au 010/23.87.00.

UNIQUE A WAVRE !! Espace loftCASCO

SITUATION

A proximité du centre de Wavre au sein du projet résidentiel neuf "Val Vena"

Val Véna est un ensemble immobilier urbain très cohérent situé sur les hauteurs de Wavre. Ce nouveau quartier d’architecture contemporaine s’intègre subtilement dans un site de 2,4 hectares où la nature règne. Pour profiter pleinement de cet environnement lumineux, laissez-vous séduire par l’un des 4 espaces de bureaux doisponible sur ce site de 152 appartements et lofts.


COMPOSITION

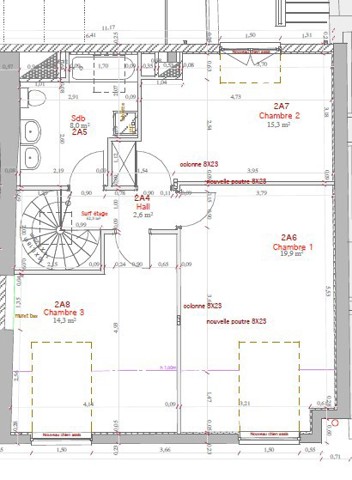
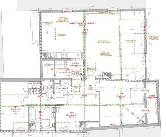
Espace de bureaux de 186 m² + 22 m² de terrasse
-->avec 2 entrées (clients & personnel)

Etat CASCO: A aménager (sol, plafonds, techniques, sanitaires, finitions,...).
Superbe opportunité d'aménager l'espace à votre goût, selon votre activité et vos besoins

Très lumineux grâce à un apport de lumière transversal avec un magnifique patio


CONDITIONS (HTVA)

275.000€

+1 parking extérieur privatif: 9.000€
+1 cave: 3.500€

-->TOTAL HTVA: 287.500€

Bâtiment

Année de construction 2021
Nombre de garage 1
Parking intérieur Non
Parking extérieur Oui
Nombre de parking 1

Nom, catégorie & situation

Nombre d'étages 4
X de coordonnées xy 50.7239932
Y de coordonnées xy 4.6062234

Equipement de base

Accès handicapés Oui
Ascenseur Oui
Double vitrage Oui
Type de cuisine non-équipée

En chiffres

Surface bâtie 208m²

À proximité

Magasins 700m
Écoles 750m
Transports en commun 50m
Centre sportif 800m
Magasins Oui
Ecoles Oui
Transports en commun Oui
Centre sportif Oui
Autoroute Oui
Autoroute 1500m
Gare Oui
Gare 750m

Sécurité

Contrôle d'accès Oui

Raccordements

Égouts Oui
Électricité Oui
Câbles téléphoniques Oui
Eau Oui

Spécificités terrain

Type d'environnement calme
Type d'environnement 2 résidentiel
Risque d'inondation zone innondable potentielle

Certificats / Attestations

Certificat d'électricité oui, conforme

Titre de l'annonce

NEUF Projet Val Vena : loft casco au rez avec terrasse

Type de matériau & évaluation

Niveau sonore calme
Luminosité lumineux
Standing standard

Visites

Visite disponibilité Dates particulières

Général

Référence 6599996
Catégorie Loft
Meublé Non
Nombre de chambres 3
Nombre de salle de bain 1
Jardin Non
Garage Non
Terrasse Non
Parking Oui
Surface habitable 186 m²
Disponibilité immédiatement

Situation

Document(s)

Partager :
Contactez-nous

* indique un champ obligatoire

This field is for validation purposes and should be left unchanged.

Vos coordonnées

This field is hidden when viewing the form
This field is hidden when viewing the form
This field is hidden when viewing the form
This field is hidden when viewing the form
This field is hidden when viewing the form
Sans titre
Sans titre
Sans titre*
Référence: 6599996
Designed and Developed by Webulous / Managed by Clevermint / Powered by Whise / Revoir le popup