Appartement - à vendre - 5000 Namur - 239.000 €

2 1 86.4 m²
Appartement
Namur
239.000 €

DECOUVREZ sur rdv ou lors de nos portes ouvertes NOTRE NOUVEL APPARTEMENT TEMOIN, rue Julie Dessy 6 à 5100 Jambes A115 : Appart. 2 Ch. + terrasse au 1er étage PEB A - Situé au sud de Namur, de l’autre côté de la Meuse, Jambes est le parfait point de chute des nouveaux habitants de la capitale wallonne. Le quartier est facilement accessible, via des nationales reliant en quelques minutes l’E411 et l’E42, et parfaitement desservi par les transports en commun. Artemis s’élève au cœur d’un quartier paisible composé d’immeubles résidentiels et bordé de nombreux espaces verts. Le bâtiment de 59 appartements, à l’architecture sobre et épurée, s’érige au bord de l’étang du Petit-Ry. Point de départ de promenades, les berges de l’étang sont un lieu de rencontre et d’échange idéal pour les habitants du quartier. Il sera aussi un lieu de vie adapté aux familles souhaitant rester proche de Namur, de sa citadelle historique, ses centres de loisirs et ses bonnes adresses. Le rez-de-chaussée et les trois premiers étages se composent chacun de douze appartements aux profils variés: d’une à trois chambres et tous disposant d’au moins une terrasse ou balcon. Une typologie mixte qui offre une belle diversité du côté des occupants: du 1 chambre de 68m2 au vaste 3 chambres de 140m2, en passant par de confortables 2 chambres de 90m2. En retrait le quatrième et le cinquième étage proposent de beaux volumes et de grandes terrasses. Plus d'informations au 010/23.87.00

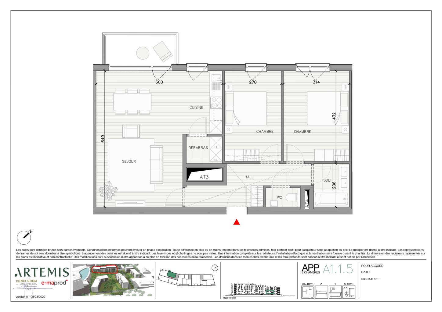
Bel appartement idéal comme investissement en cours de construction développant une superficie de 86,40m² + terrasse 5,40m² orientée Sud-Ouest.
Appartement situé au 1er étage.

Techniques :

Châssis en aluminium thermique double vitrage - Chaudière à condensation au gaz - carrelages imitation parquet - cuisine équipée à choisir - ascenseur
Personnalisation possible.


Composition

REZ

Hall d'entrée, carrelages
Wc séparé avec lave main, carrelages
Séjour (32m²) avec accès terrasse orientée sud-ouest, carrelages
Cuisine américaine super-équipée à choisir selon un budget
Buanderie, carrelages

Ch. 1 (11,60m²), carrelages imitation plancher
Ch. 2 (13,5m²), carrelages imitation plancher
Salle de bains, bain/douche, meuble 2 lavabos,
sèche serviette, carrelages

REMARQUES
Belles finitions et pack investisseur possible
Obligation d'acquérir en sus du prix un emplacement de parking intérieur à 20.000€ hors frais et une cave à 2.500€
PEB: B

Bâtiment

Année de construction 2022

Nom, catégorie & situation

Nombre d'étages 5
X de coordonnées xy 50.44479399999999
Y de coordonnées xy 4.8748932

Equipement de base

Accès handicapés Non
Cuisine Oui
Chauffage (ind/coll) individuel
Ascenseur Oui
Double vitrage Oui
Chauffage gaz (chau. centr.)
Type d'ascenseur personnes
Type de cuisine amer. super-équipée
Double vitrage isol. thermique et acoustique
Videophone Oui

Divers

Buanderie Oui
Cave Oui

En chiffres

Nbre de toilette(s) 1
Chambre 1 11.6m²
Chambre 2 13.5m²
Nbre de terrasse(s) 1
Salle de séjour 32m²
Orientation de la terrasse 1 sud-ouest

Equipement extérieur

Piscine Non

Charges & Rendement

Sous régime TVA Oui
Prix de location minimum 920

Raccordements

Égouts Oui
Électricité Oui
Gaz Oui
Eau Oui

Équipements techniques

Châssis aluminium thermique

Spécificités terrain

Type d'environnement calme
Type d'environnement 2 résidentiel

Caractéristiques Principales

Surface de terrasse 1 5.4m²

Certificats / Attestations

Certificat d'électricité oui, conforme

Titre de l'annonce

A115 : Appart. 2 Ch. + terrasse au 1er étage

Coûts & Frais

Valeur du bien 239000

Général

Référence 6506036
Catégorie Appartement
Meublé Non
Nombre de chambres 2
Nombre de salle de bain 1
Jardin Non
Garage Non
Terrasse Oui
Parking Oui
Surface habitable 86.4 m²
Disponibilité à la livraison

Situation

Partager :
Contactez-nous

* indique un champ obligatoire

This field is for validation purposes and should be left unchanged.

Vos coordonnées

This field is hidden when viewing the form
This field is hidden when viewing the form
This field is hidden when viewing the form
This field is hidden when viewing the form
This field is hidden when viewing the form
Sans titre
Sans titre
Sans titre*
Référence: 6506036
Designed and Developed by Webulous / Managed by Clevermint / Powered by Whise / Revoir le popup