Bureaux - à louer - 1410 Waterloo - 675 €

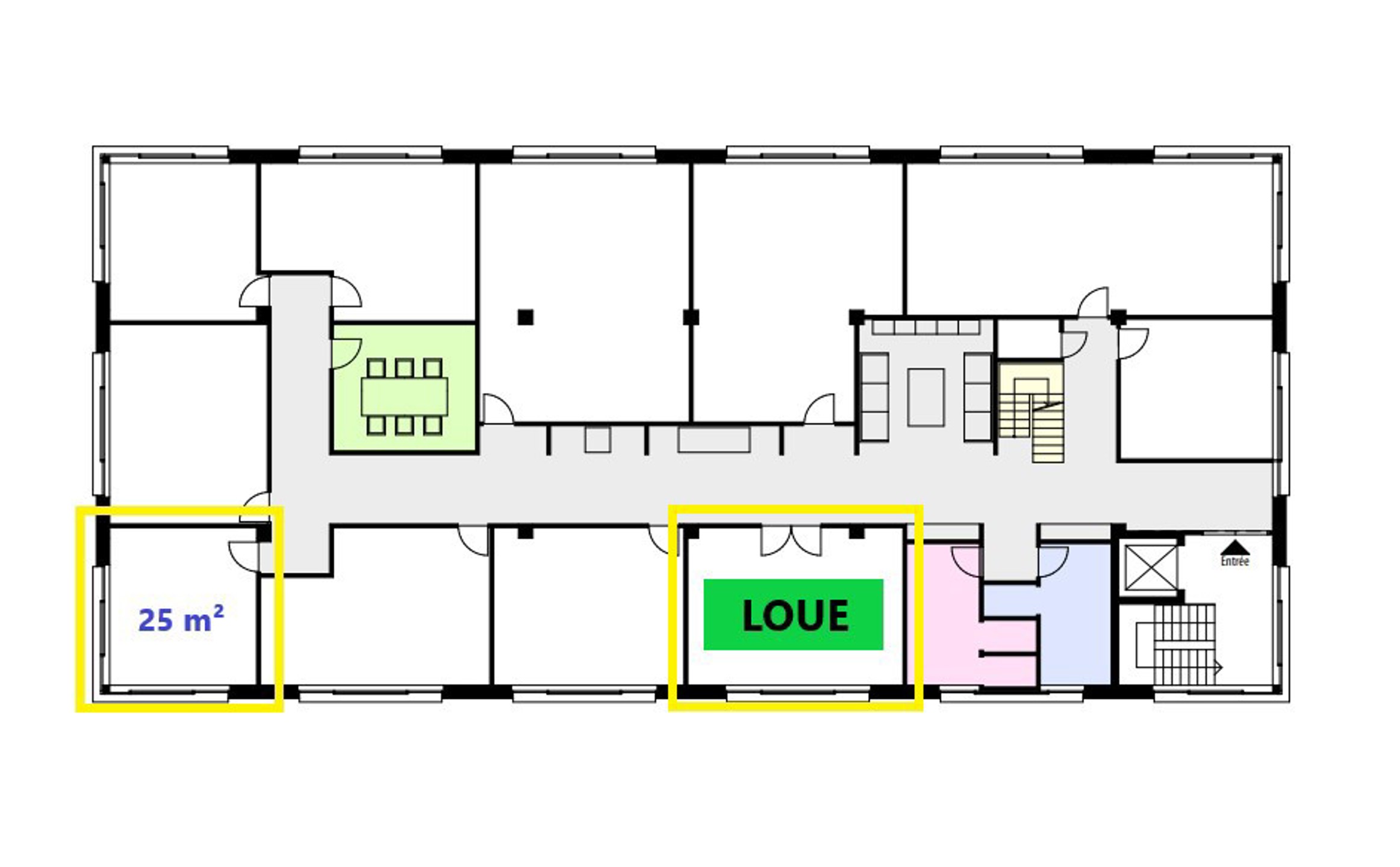
1 25 m²
Bureaux
Waterloo
675 €


Espace Multi-entreprises moderne et stylé | Belle opportunité | Excellent rapport Espace/qualité/prix


- WATERLOO - Très beau bureau privatif de 25 m² dans un espace "coworking"/multi-entreprises partagé (2 niveaux)

- A 2 min du centre de Waterloo

- Moderne, décoré avec goût, super dynamique

Espaces très agréables, complètement rénovés avec goût et style


LE LOYER "All-In" COMPREND:

- le chauffage, l'eau, l'électricité
- le précompte immobilier
- l'entretien des locaux (une fois semaine, 48 semaines par an), des communs et de l'extérieur, l'enlèvement des poubelles papier et ménagères
- l'entretien des locaux (une fois semaine), des communs
- le Wifi
- accès à une cuisine et sanitaires communs
- accès à une salle de réunion de 15 m²
- hall d'attente pour visiteurs
- Salon et espaces pour téléphoner
- espace commun agréable
- relevé du courrier
- parking en suffisance au sous-sol
- bornes électriques à disposition
- photocopieuse à disposition
- Eau et machine à café à disposition

</terrain><terrain environnement="" et=""><caracteristiques>

EN OPTION:

- mobilier de bureau


LOYER:

Loyer: 675€/mois hors charges et précompte
Forfait de charges All-In: 200€/mois

Loyer All-In = 875€/mois HTVA

Bâtiment

Année de construction 2010
Parking intérieur Oui
Parking extérieur Oui

Nom, catégorie & situation

Nombre d'étages 3
X de coordonnées xy 50.71195650000001
Y de coordonnées xy 4.4004708

Equipement de base

Accès handicapés Oui
Ascenseur Oui
Toilettes H/F Oui
Chauffage gaz
Type d'ascenseur personnes

Spécificités terrain

Type d'environnement commerce
Risque d'inondation pas situé en zone inondable

En chiffres

Bureau 25m²

Certificats / Attestations

Certificat d'électricité oui, conforme

Titre de l'annonce

Superbe bureau privatif lumineux | Espace multi-entreprises

Général

Référence 7192976
Catégorie Bureaux
Meublé Non
Nombre de chambres
Nombre de salle de bain
Jardin Non
Garage Oui
Terrasse Non
Parking Oui
Surface habitable 25 m²
Disponibilité en fonct. du locataire

Situation

Partager :
Contactez-nous

* indique un champ obligatoire

This field is for validation purposes and should be left unchanged.

Vos coordonnées

This field is hidden when viewing the form
This field is hidden when viewing the form
This field is hidden when viewing the form
This field is hidden when viewing the form
This field is hidden when viewing the form
Sans titre
Sans titre
Sans titre*
Référence: 7192976
Designed and Developed by Webulous / Managed by Clevermint / Powered by Whise / Revoir le popup